Vízhálózat karbantartás 4-8. ütem

A héten is folytatódik a vízhálózat tisztítása. November 24-28 között minden nap 8 és 16 óra között  folytatódik a városi vízhálózat karbantartása, ami miatt elzárják a vizet alábbi képeken jelzett területen a DPMV Zrt. szakemberei. A karbantartás a hét minden napján folytatódik a város más-más területein. A kizárások miatt az ivóvízhálózaton vízzavarosság és nyomáscsökkenés várható. Tervezett munkálatokról lévén szó, a DPMV Zrt. igyekszik a megadott határidőn belül befejezni a tervezett munkavégzést, ugyanakkor „minden eshetőségre felkészülve”, kérjük, tartalékoljanak vizet a megadott időszakra.
Alábbiakban összefoglaljuk milyen intézkedések szükségesek a házban, illetve a ház körül a víz elzárása előtt és a karbantartás után.
💧Kérjük, hogy minden érintett felhasználónál legyen elzárva a vízmérő aknában a főelzáró, az egyes kritikus részek (pl. mosógép, kazán stb.) előtti elzáró, illetve a visszanyitás is a kerti csap, mosdókagyló és egyebek sorrendben történjen.
💧Amennyiben nincs lehetőség elzárni a házi vízhálózatot, akkor kérjük, kerüljék a vízfelhasználást a munkavégzés ideje alatt.
💧A munkálatokat követően elsőként – rövid folyatással (max. 1-2 perc) – a kerti csapnál vagy a kézmosónál ellenőrizzék a víz minőségét.
💧A vízszolgáltatás szünetelése idejére a DPMV Zrt. lajtos kocsiból is biztosítja a vízvételi lehetőséget.
Heti ütemterv:

4. ÜTEM: 2025. november 24. (hétfő) 08.00-16.00 óra között

a dunavarsányi vízhálózat tisztítási munkálatai miatt az ivóvízszolgáltatás a

Petőfi Sándor utca, Széchenyi utca, Eötvös utca

– Vasút utca (Bajcsy-Zsilinszky utca és Vörösmarty utca által határolt szakasza)

– Görgey utca (Bajcsy-Zsilinszky utca és Vörösmarty utca által határolt szakasza)

– Búza utca (Bajcsy-Zsilinszky utca és Vörösmarty utca által határolt szakasza) és térségében szünetel.

A kizárások miatt az ivóvízhálózaton vízzavarosság és nyomáscsökkenés várható.

5. ÜTEM: 2025. november 25. (kedd) 08.00-16.00 óra között

a dunavarsányi vízhálózat tisztítási munkálatai miatt az ivóvízszolgáltatás a

Határ utca, Tompa utca, Jókai utca, Baross utca, Bajcsy-Zsilinszky utca, Habitat – köz

– Vasút utca (Taksonyi utca és Baross utca által határolt szakasza)

– Görgey utca (Bajcsy-Zsilinszky utca és Baross utca által határolt szakasza)

és térségében szünetel.

A kizárások miatt az ivóvízhálózaton vízzavarosság és nyomáscsökkenés várható.

6. ÜTEM: 2025. november 26. (szerda) 08.00-16.00 óra között

a dunavarsányi vízhálózat tisztítási munkálatai miatt az ivóvízszolgáltatás a

Habitat utca, Tanítók útja, Gömöry utca, Százados Istvánné utca, Malmos József utca, Csorba Dezső utca, Mártonyi Károlyné utca, Tömösvári Sándor utca és térségében szünetel.

A kizárások miatt az ivóvízhálózaton vízzavarosság és nyomáscsökkenés várható.

7. ÜTEM: 2025. november 27. (csütörtök) 08.00-16.00 óra között

a dunavarsányi vízhálózat tisztítási munkálatai miatt az ivóvízszolgáltatás a

Halász Lajosné utca, Vasút sor utca, Gyóni utca, Honvéd utca, Kölcsey utca, Bethlen Gábor utca, Hősök útja, Viola utca, Ady Endre, Hősök tere, Rózsa utca, Bem utca, Üdülő sétány

  • Damjanich utca (Halász Lajosné és a Deák Ferenc utca által határolt szakaszon)
  • Akácfa utca (Halász Lajosné és a Viola utca által határolt szakaszon)

és térségében szünetel.

A kizárások miatt az ivóvízhálózaton vízzavarosság és nyomáscsökkenés várható.

8. ÜTEM: 2025. november 28. (péntek) 08.00-16.00 óra között

a dunavarsányi vízhálózat tisztítási munkálatai miatt az ivóvízszolgáltatás a

Szabadkai utca, Szabadkai – köz, Hun utca, Orgona – köz, Levendula utca

  • Árpád utca (Rákóczi Ferenc utca és a Vasút utca által határolt szakaszon)
  • Vasút utca (Rákóczi Ferenc és a Szabadkai utca által határolt szakaszon)
  • Epres utca (Kökény utcától a Szabadkai – köz irányába)
  • Homok utca (Kökény utcától a vasút irányába)

és térségében szünetel.

A kizárások miatt az ivóvízhálózaton vízzavarosság és nyomáscsökkenés várható.

Tervezett munkálatokról lévén szó, igyekszünk a megadott határidőn belül befejezni a tervezett munkavégzést, ugyanakkor „minden eshetőségre felkészülve”, kérjük, tartalékoljanak vizet a megadott időszakra.

A megadott időszakokban biztonsági tartalékként lajtoskocsiból vízosztást biztosítunk a Szabadkai utca és Epres utca kereszteződésében

Megértésüket és türelmüket köszönjük!

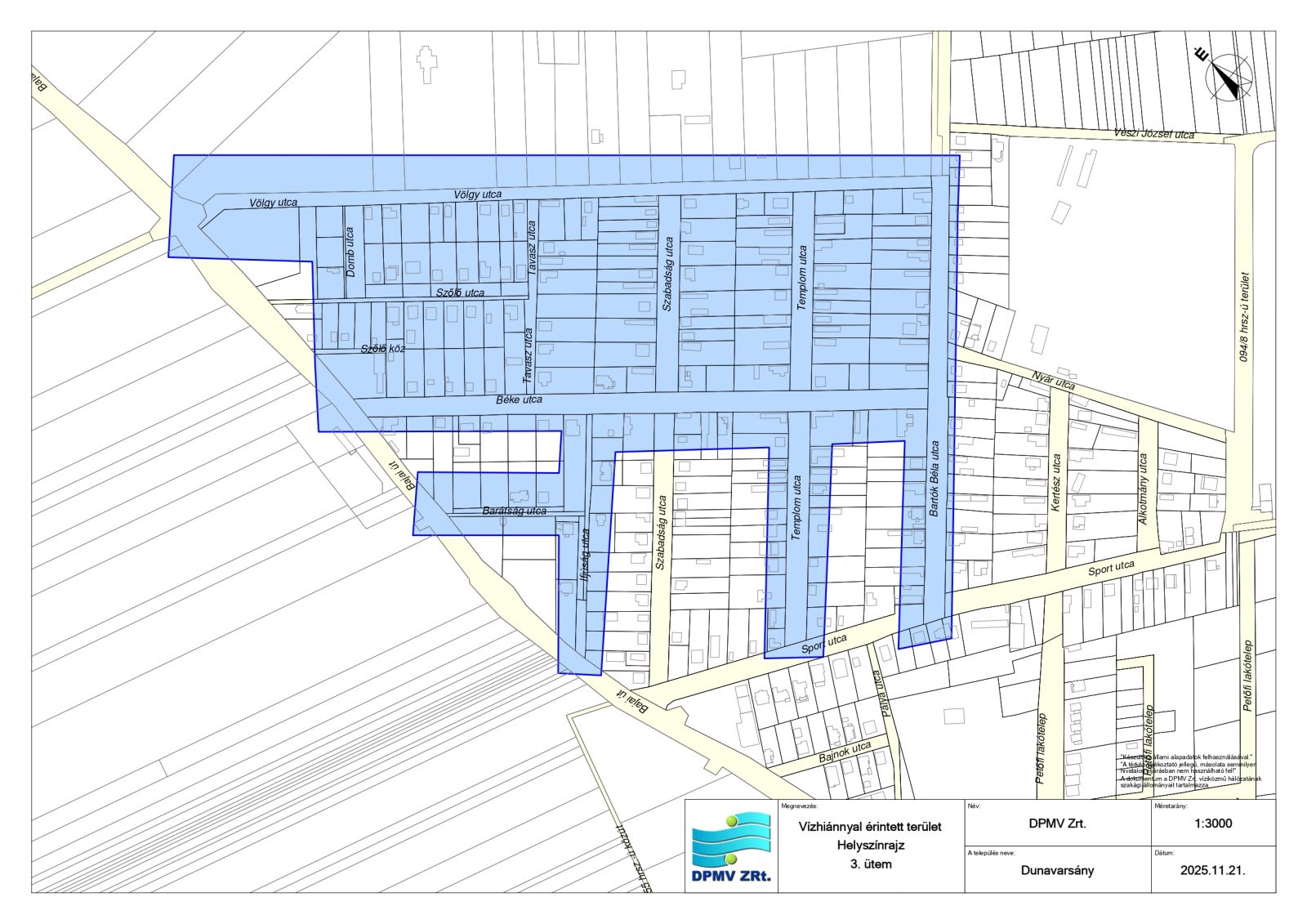
VÍZHIÁNYOK TÉRKÉPEN ÜTEMEZÉS SZERINT PDF

1. ÜTEM

2. ÜTEM

3. ÜTEM

4. ÜTEM

5. ÜTEM

6. ÜTEM

7. ÜTEM

8. ÜTEM

A vízminőség javítása közös érdekünk. A munkálatok idejére szíves megértésüket és türelmüket kérjük!